737-471-6626
dino@urbaneroost.com
Logo
  • Available
  • Portfolio
  • Custom & Renovations
  • Invest
  • About
    • About Us
    • Our Team
    • Testimonials
  • Warranty
Contact Us

616 W. 33rd Street

616 W 33rd Street

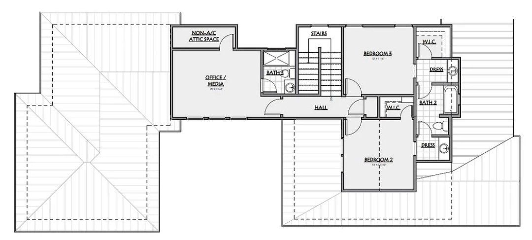
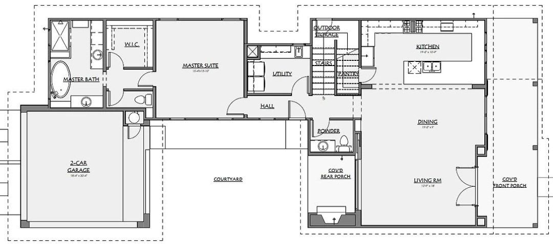
3 Beds

3.5 Baths

2 Carport

2,300 Sq. Ft.

Back to Portfolio
portfolio of homes | urbane roost | Austin, Tx 78756
Button
Button
Button
Button
Button
Button
Button
Button
Button
Button
Button
Button
Button
Button
Button
Button
Button
Button
Button
Button
Button
Button
Button
Button
Button
Button
Button
Button
Button
Button
Button
Button
Button
Button
Button
Button

Floor Plan

available homes | urbane roost | Austin, Tx 78756

First Floor

Button

Second Floor

Button

© | All Rights Reserved | Site by

Address

1004 W. 43rd Street
Austin, Tx 78756

Contact Details

737-471-6626
dino@urbaneroost.com

Quick Links

  • Privacy Policy
  • Warranty
  • Invest

Prices, plans, specifications, elevations, included features, materials, and dimensions are subject to change without notice. All square footages and dimensions are estimated and may vary in actual construction. Floor plans and elevations are artists' renderings and are not intended to show specific detailing. Floor plans are the property of Urbane Roost, LLC and its affiliates and are protected by U.S. copyright law.

Share by: